Многофункциональное здание г. Гродно, ул. Антонова, 9 Аренда помещений / Продажа здания / Реклама и маркетинг
г. Гродно, ул. Антонова, 9
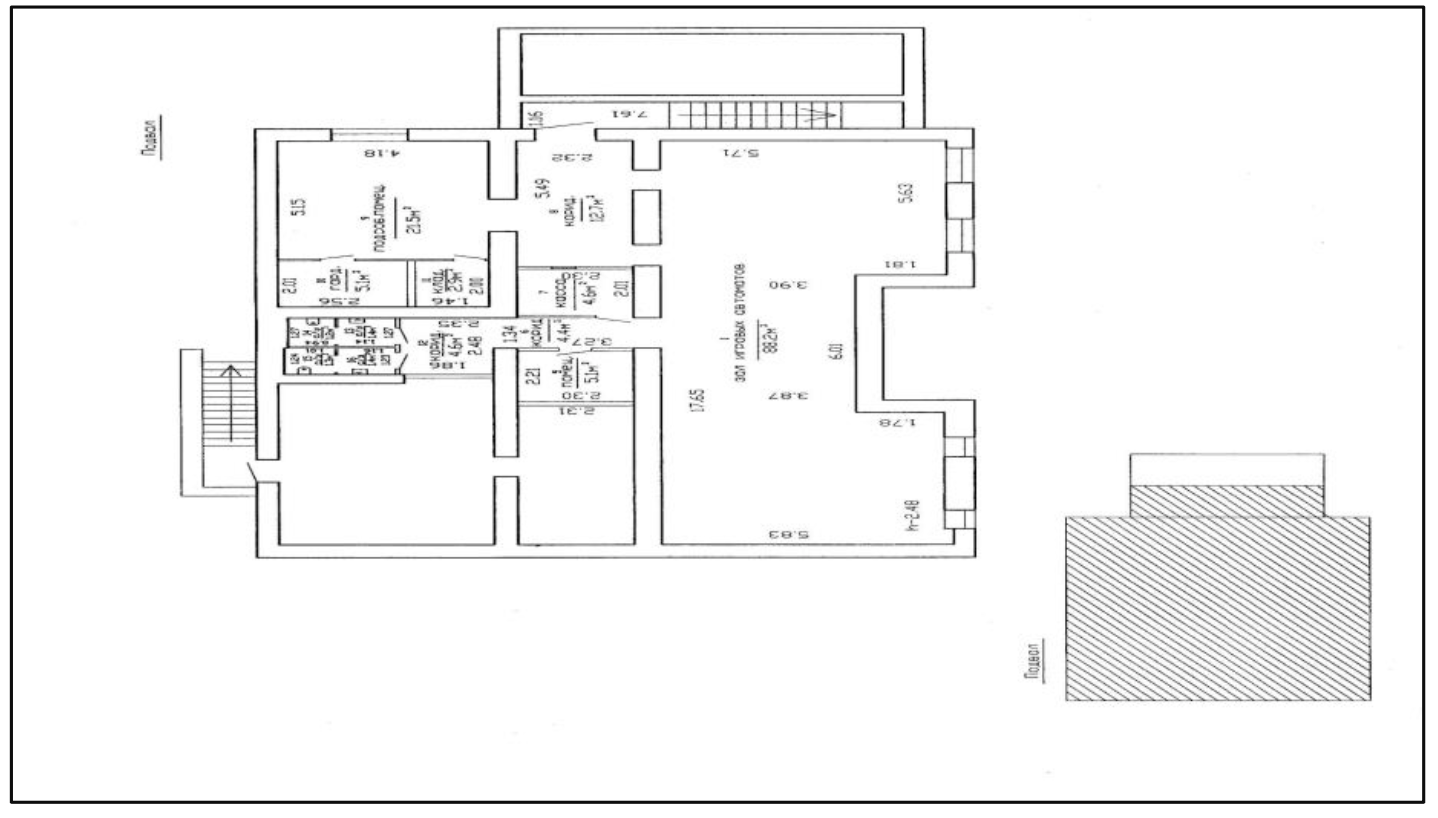
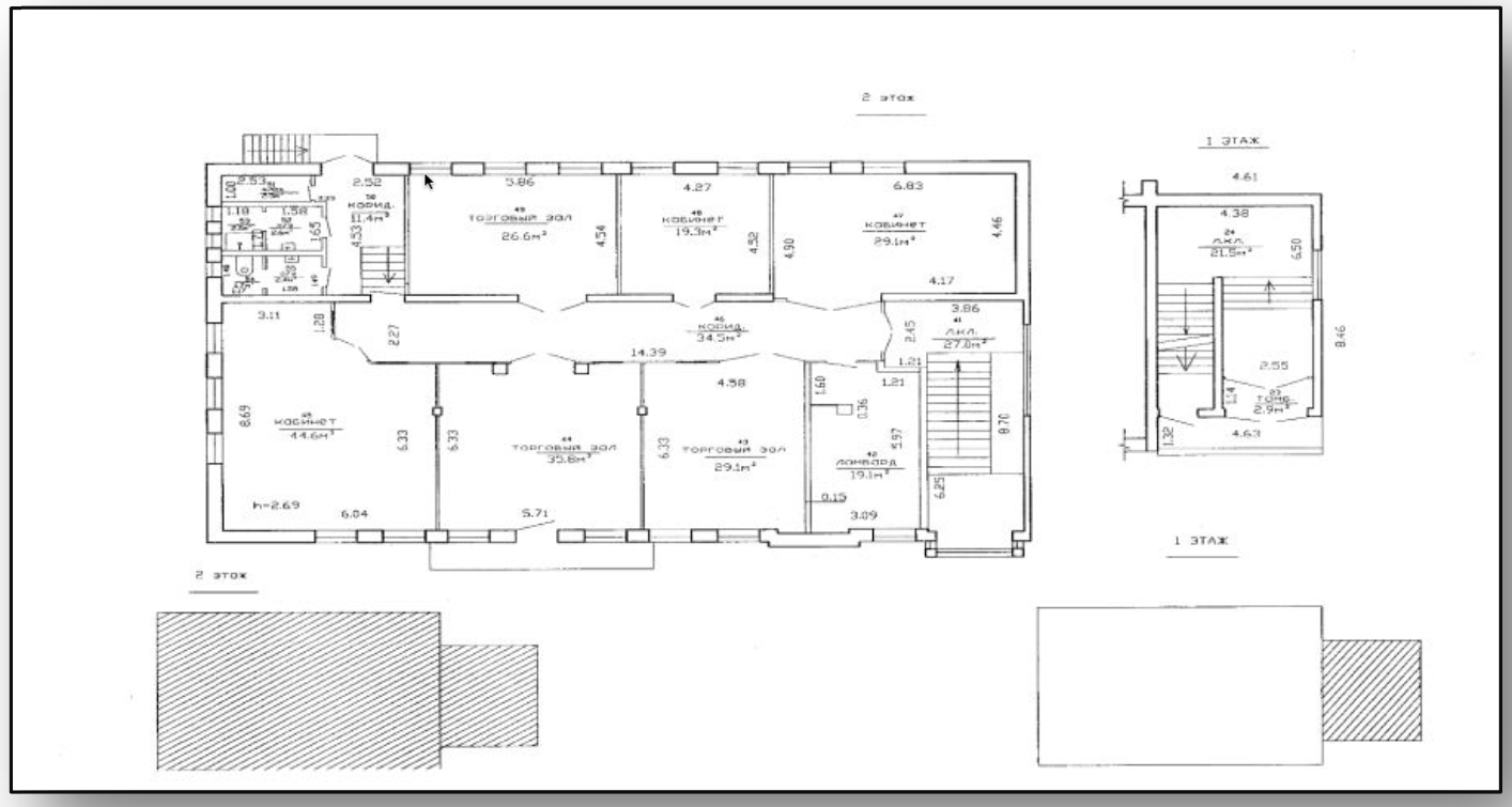
Многофункциональное здание, год постройки 2008г. GBA (общая площадь) — 736,8 м² Этажность 2 + 1
Открыт в 2008г.
GBA — 736,8 м²
Здание находится в центре города с активным пешеходным и транспортным сообщением между автовокзалом и Центральным рынком. Прилегающая парковка на 10 машиномест. Здание на всех коммуникациях, имеется система пожаротушения. Есть цокольный этаж, площадка ТБО, лифт отсутствует. Есть возможность использовать прилегающую территорию как террасу. Возможно размещение автомобилей на внутренней парковке.
Инженерное оборудование
—Центральное отопление,
—водопровод и канализация (централизованная система холодное и горячее водоснабжение),
—централизованная система электроснабжения,
—вентиляция с естественным побуждением,
—телевидение,
—телефонизация,
—противопожарная система
Стены
Наружные: блоки газосиликатные
Внутренние: кирпич силикатный
Перекрытия: Плитка железобетонная
Кровля: Металлическая черепица
Полы: Бетон, Керамическая плитка
Отделка
Наружная отделка стен: Оштукатурено и окрашено
Внутренняя отделка: Обшивка гипсокартонными листами, оштукатурено и окрашено
Этажность 2
РАСПОЛОЖЕНИЕ НА КАРТЕ
Хотите узнать больше о наших услугах или обсудить ваш проект?
