Административно-торговое здание, г, Пинск Аренда помещений
г. Пинск, ул. Ленина, 21
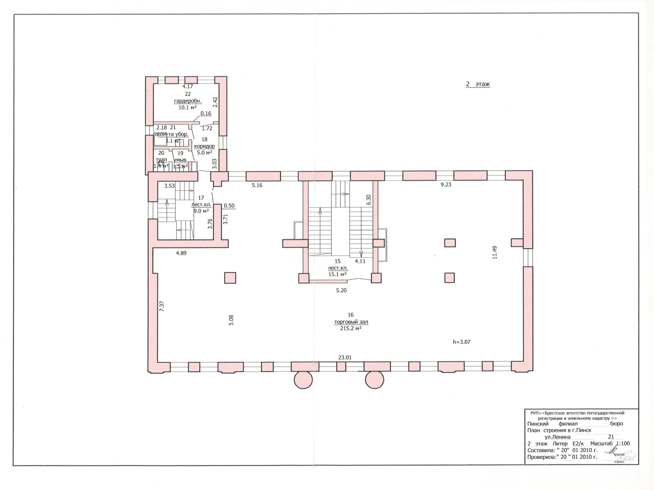
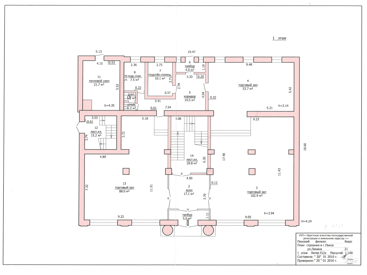
Административно-торговое здание, год постройки 1951г. (Реконструкция в 2009г.). GBA (общая площадь) – 637,3 м2. Этажность – 2
Реконструкция в 2009г.
GBA – 637,3 м2.
Двухэтажный объект недвижимости находится в составе комплексной историко-культурной ценности второй категории – исторического центра города Пинска Брестской области.
Последняя реконструкция была проведена в 2009 году.
Выгодная локация на одной из основных городских улиц с постоянным высоким пешеходным трафиком, удобным подъездом. Центральное расположение объекта обеспечивает стабильный поток посетителей и хорошую узнаваемость локации.
Два этажа позволяют функционально разделить пространство и использовать объект под различные коммерческие задачи.
Объект обеспечен всеми необходимыми коммуникациями.
Инженерное оборудование — Центральное отопление — водопровод (металлические трубы, центральный) — канализация (ПВХ трубы, центральная) — электроснабжение (скрытая проводка) — вентиляция (естественная) — интернет (оптоволокно)
Стены
Наружные: кирпичные
Внутренние: кирпичные
Перекрытия чердачные: Деревянное
Перекрытия междуэтажные: Деревянные, железобетонные
Кровля: Металлопрофиль
Полы: Плитка ГРЭС, ламинат
Отделка
Наружная отделка цоколя: оштукатурено
Наружная отделка стен: декоративная штукатурка с покраской
Внутренняя отделка: декоративная штукатурка, обои
Объект недвижимости подходит для размещения офиса, торговли, сферы услуг, представительства компании и других видов деятельности в рамках действующего законодательства.
РАСПОЛОЖЕНИЕ НА КАРТЕ
Хотите узнать больше о наших услугах или обсудить ваш проект?
